Appeal
E-App
Eligibility
Financing
CPF Housing Grant
What is Resale Levy?
Progressive Payment
Deferred Payment
Timeline
⎯⎯⎯ Calculators ⎯⎯⎯
MSR / TDSR
Resale Levy
Bridging Loan
Cashflow Calculator
More
Balance Units
Price Range
Floor Plans
Gallery
Insights
FAQ
Appeal
E-App
Eligibility
Financing
CPF Housing Grant
What is Resale Levy?
Progressive Payment
Deferred Payment
Timeline
⎯⎯⎯ Calculators ⎯⎯⎯
MSR / TDSR
Resale Levy
Bridging Loan
Cashflow Calculator
More
Balance Units
Price Range
Floor Plans
Gallery
Insights
FAQ
Fully Sold!
Ask for Drop out unit!
6911 6100
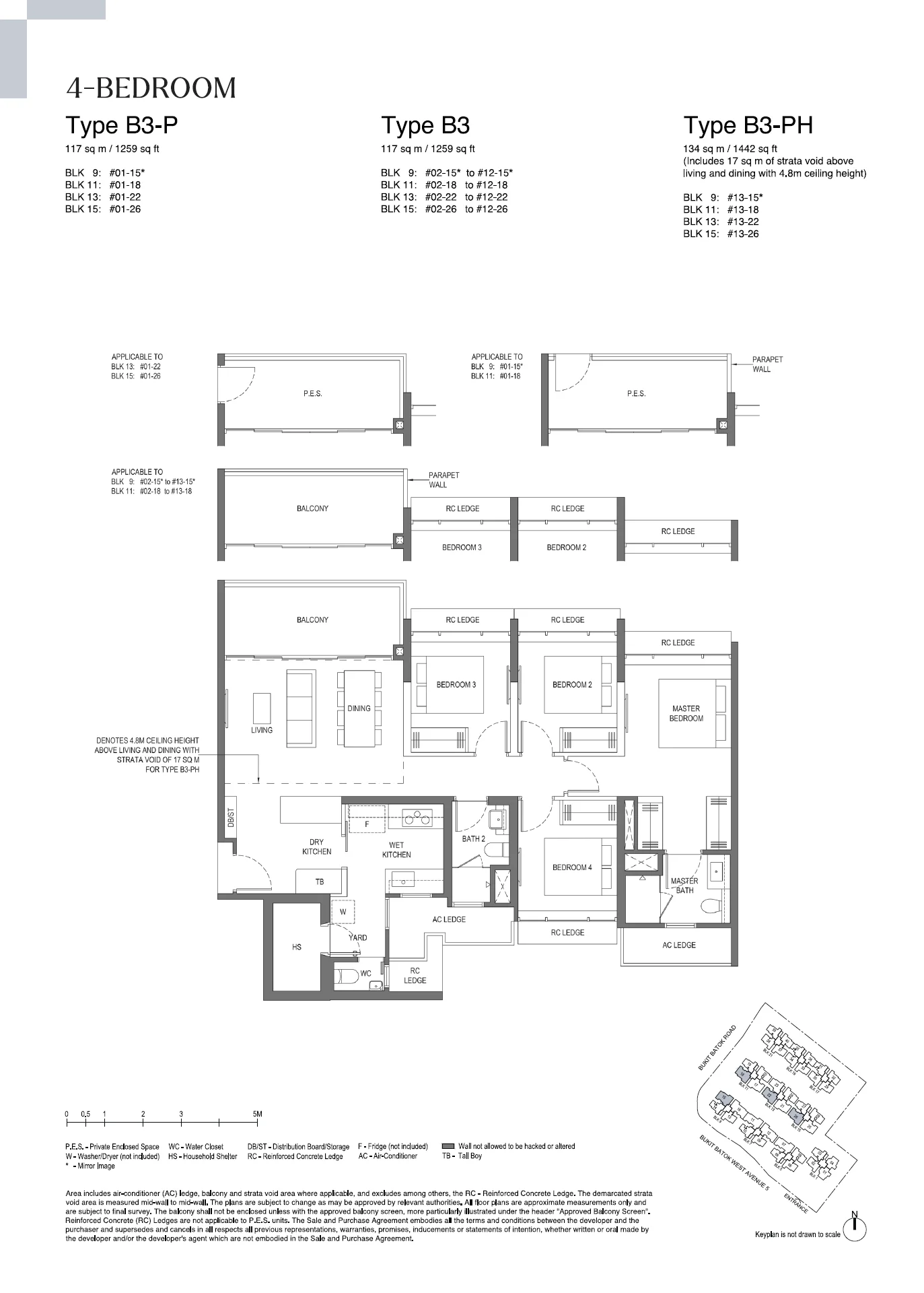
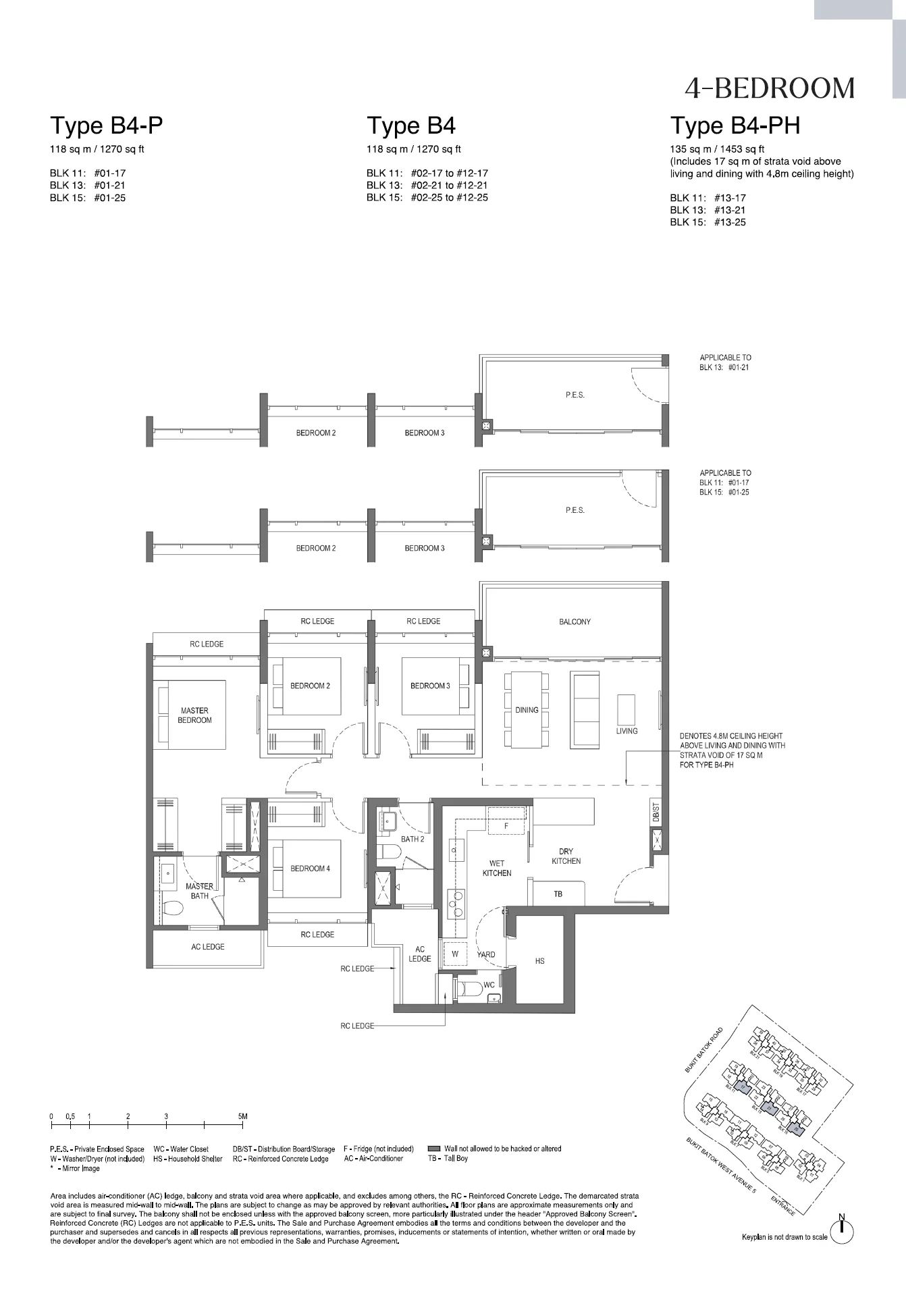
Lumina Grand Floor Plan
All
Balance Units Floor Plan
3 B
3 B P
4 B
5 B
3 Bedroom
3 Bedroom
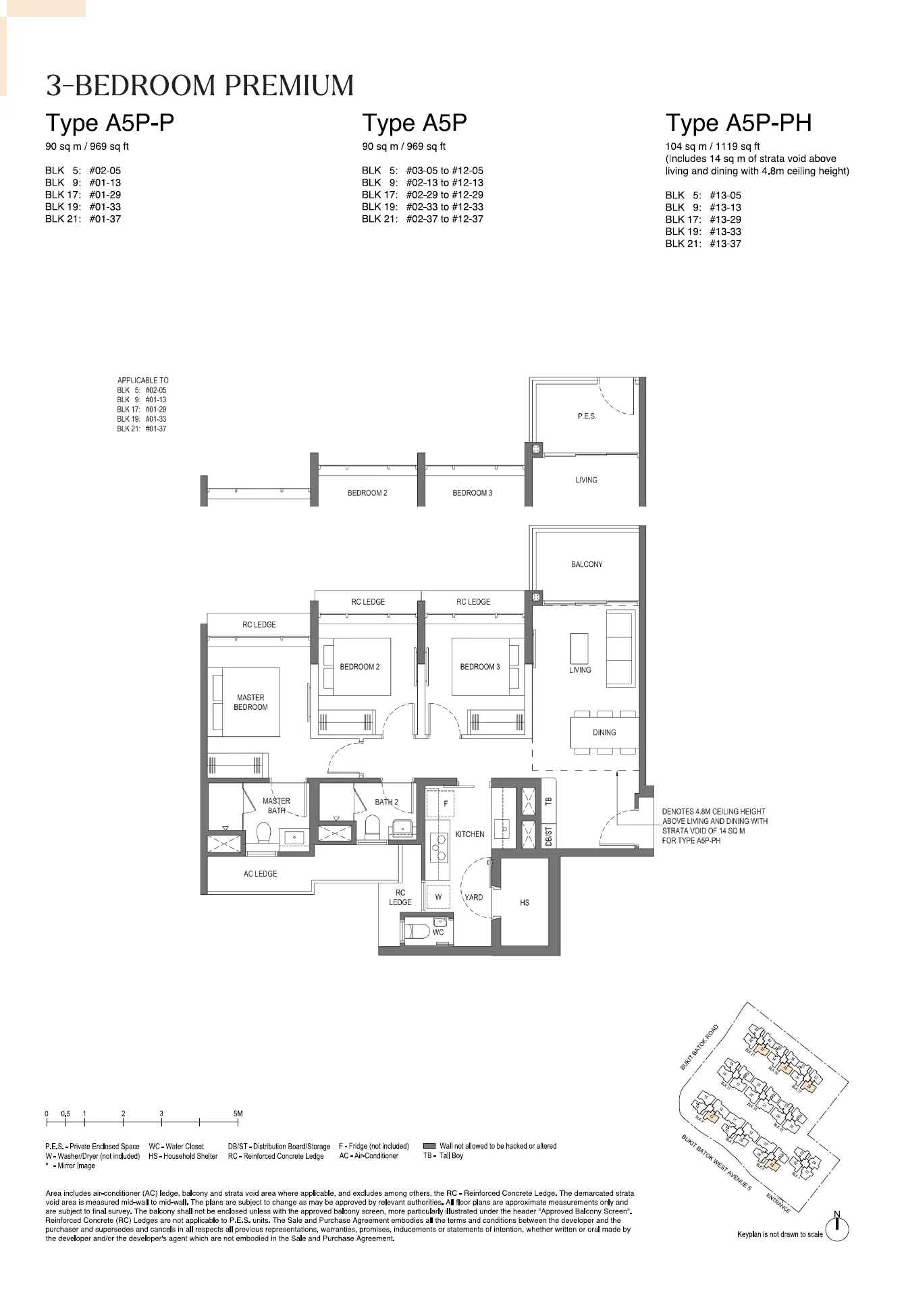
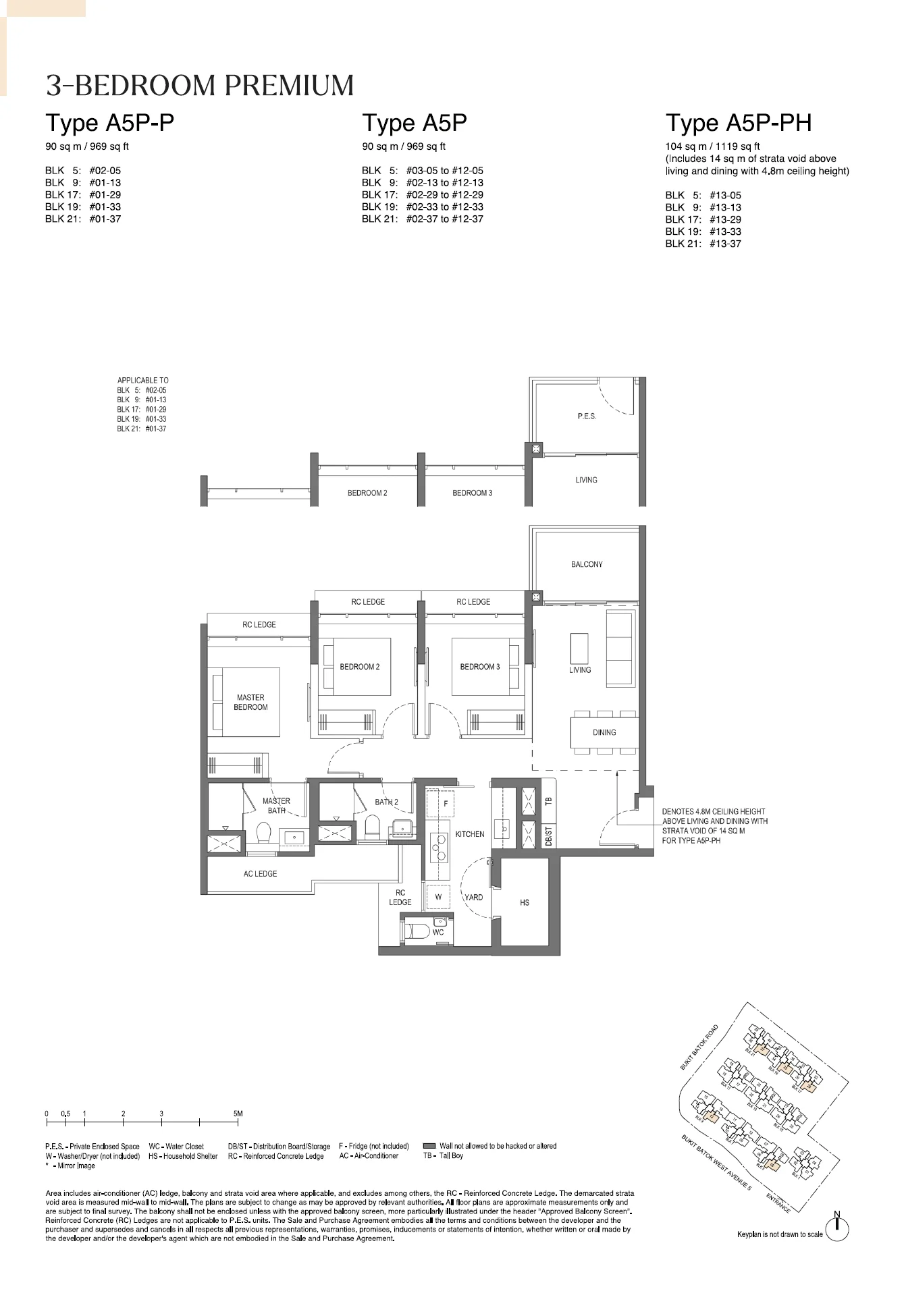
3 Br Premium
3 Br Premium
3 Br Premium
3 Br Premium
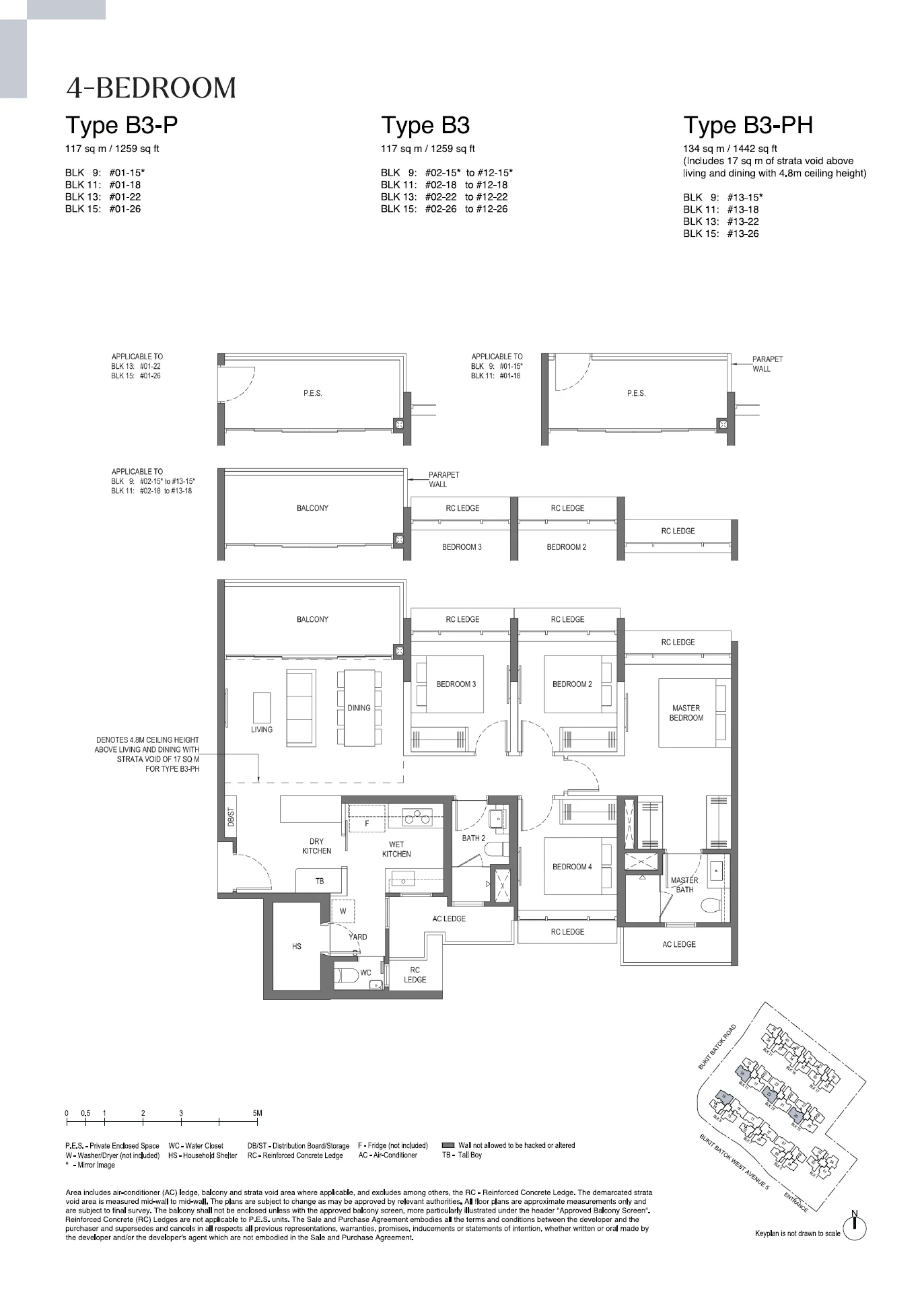
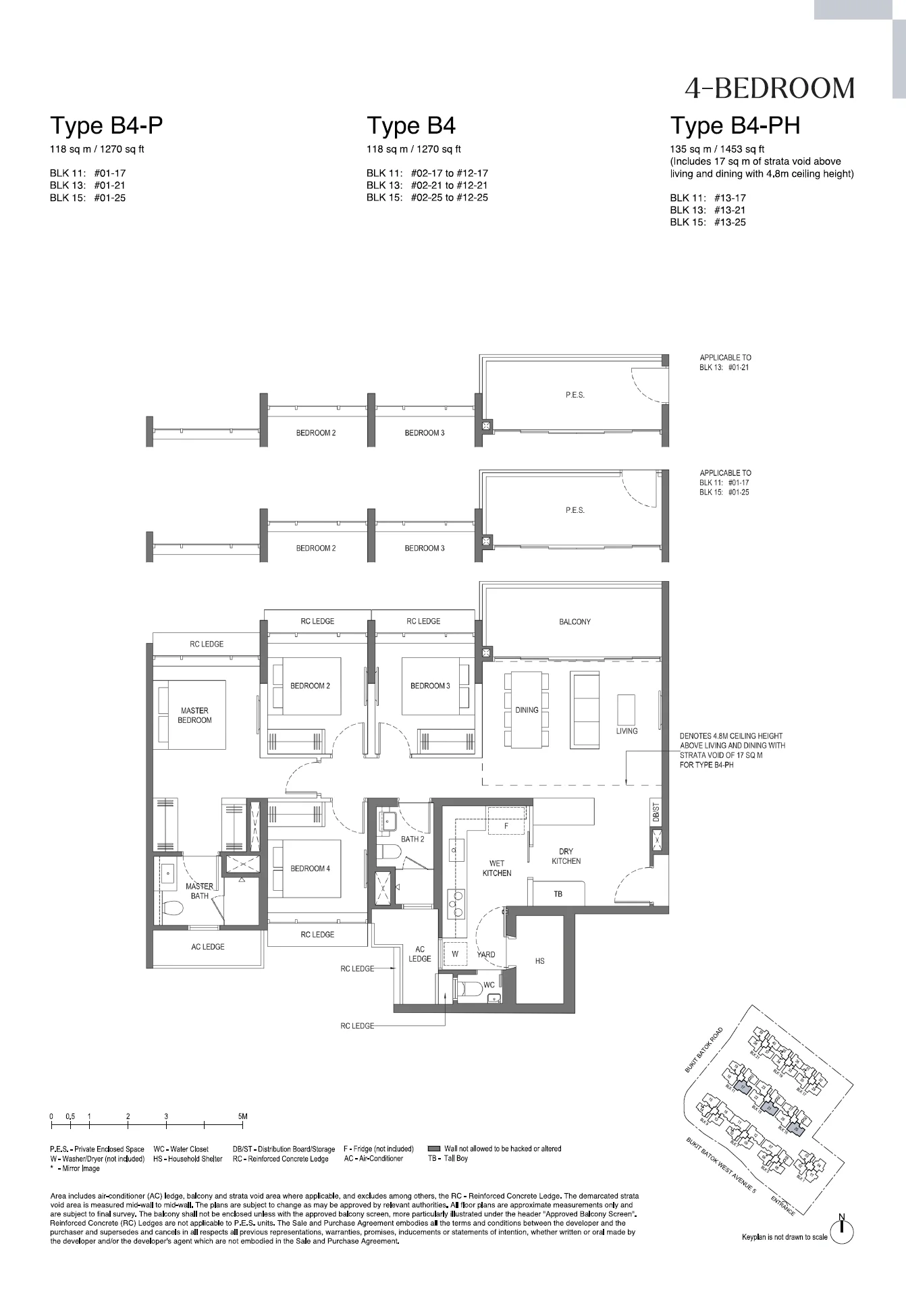
4 Bedroom
4 Bedroom
4 Bedroom
4 Bedroom
5 Bedroom
5 Bedroom
3 Bedroom
3 Bedroom
3 Bedroom
3 Bedroom
5 Bedroom
5 Bedroom